e.jorgenson designs

— Conservatory Bench

Bench and Storage Solution f


— Advising Professor

Jonathan Reich


— Date

Cal Poly, Spring Quarter,

March – June 2023


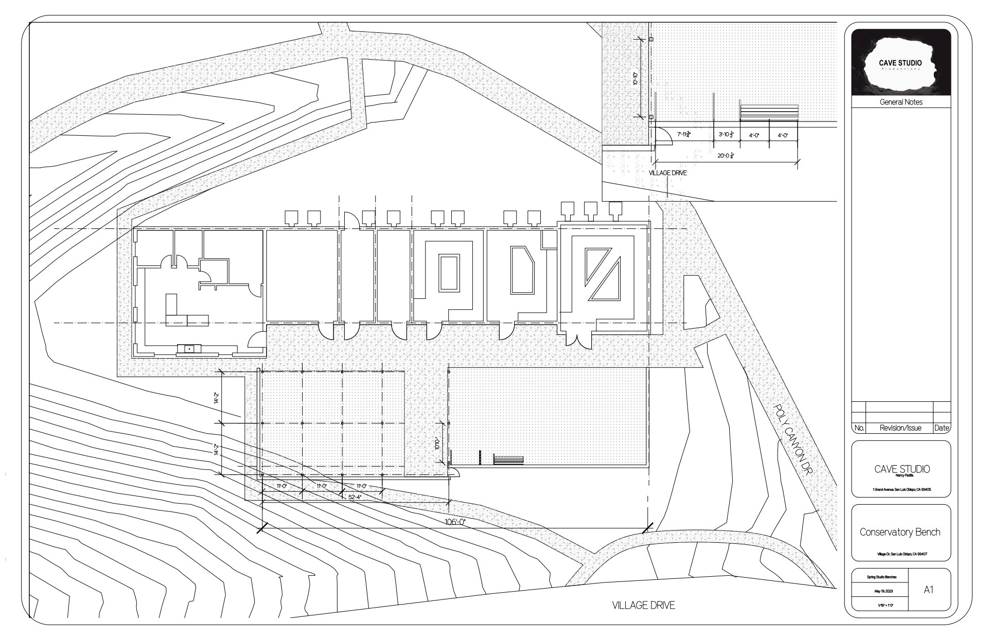
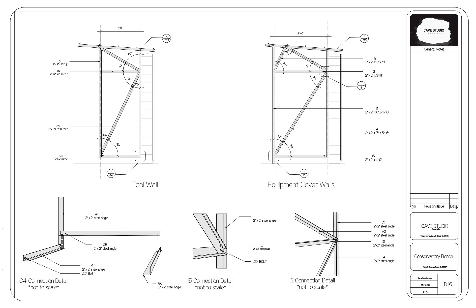
This project was a group effort in which we found a site on campus on which an existing wall could be utilized for a new purpose. Below is the final set of construction drawings, with each sheet denoting who in the group created the drawings.


The original group of four members including myself, Morgan Miller, Nancy Padilla, and J Do conceptualized the bench design in collaboration with Gage Wiley who helps run the Cal Poly Conservatory. Once design was settled, we decided on materiality and started the fabrication process. By the end of spring quarter we had completed preparing all of the steel components for assembly and assembled temporarily to make sure each piece was correct before galvanization.


A new team overseen by Jonathan Reich picked up the project in the fall to get the brackets galvanized as well as install the structure up at the conservatory. Final decisions about wall and door panel materiality are still happening, more pictures will be added when the door coverings are attached.

Image Gallery

site, progress, and final images

Opposite side of bench wall

View into bench courtyard

View into bench courtyard

View from bench courtyard to entrance

Cutting steel angles!

Cutting Steel Angles!

Transport of pieces from shop back to studio

Assembly of bracket

Bracket assembly complete!

View into courtyard with structure installed

View of bench component

View of storage and protection of living wall hydro-system components