e.jorgenson designs

— Senior Thesis

Behind the Silver Screen


— Advising Professor

Greg Wynn


— Date

Cal Poly, Fifth year,

September 2023 – June 2024


Here you can find everything created for my thesis project.

Ordered chronologically from the start of the 2023-2024 academic year with the most recent work at the top of the page.

This page was continuously updated as the project progresses.


At the completion of this project I was awarded with the “2023-2024 Thesis Award” issued by the College of Architecture and Environmental Design Thesis Faculty.

Thesis Book

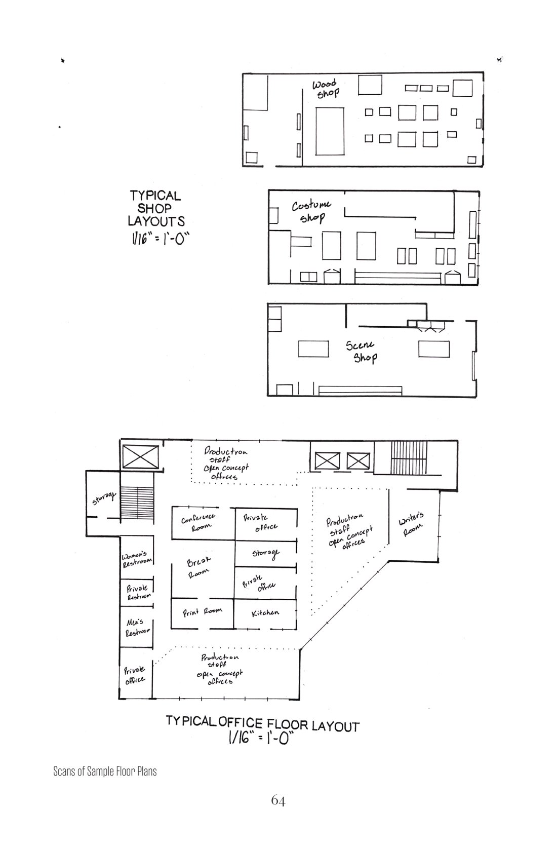
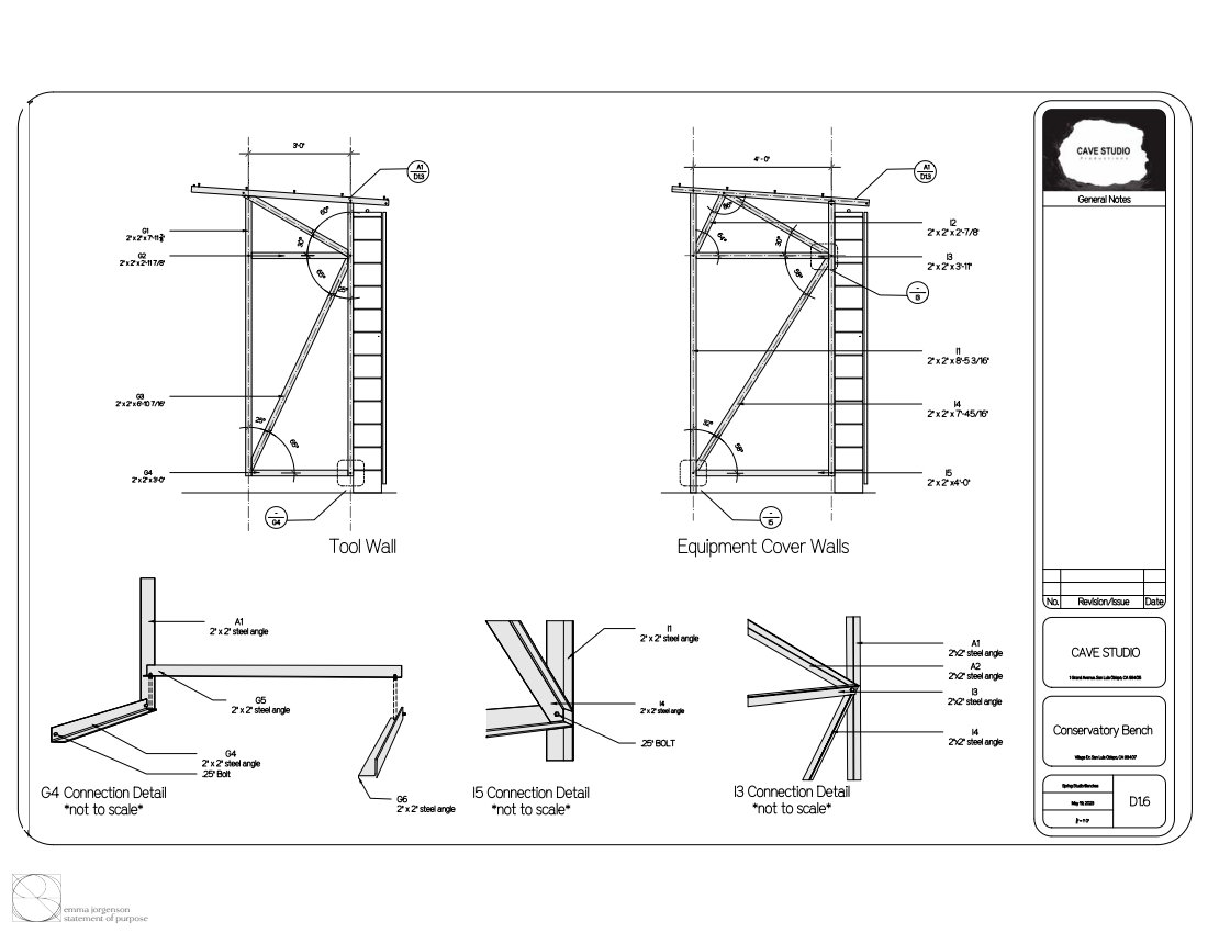
Here you will find my final thesis book. It contains all the research, project pictures, and more to summarize my final year at Cal Poly, SLO. The PDF can also be viewed/downloaded here

Detail Show

Made with different layers of paper and some sketching, this scene shows the connection between stage, storage, and green rooms.

Qualifying Review

In this review students are given 2 minutes to talk and then all of the fifth year faculty have 8 minutes to critique, analyze, or otherwise. You can listen to my review below as well as see scans of the hand-drawn posters I used for this review.

Scanned Poster 1

Scanned Poster 2

Scanned Poster 3

Scanned Poster 4

Scanned Poster 5

Scanned Poster 6

Section Show

abstract site model

Thesis Statement Show

given a template by the Fifth-Year Committee, each fifth year student created a thesis statement of roughly 500 words to show in the Berg Gallery on Cal Poly’s Campus.

Fall Quarter Recap

overview of research done from sept-dec 2023

Abstract Show

initial abstract ideation of our personal thesis statements as posters and artifacts to show in the Berg Gallery on Cal Poly's Campus

Statement of Purpose

Thesis studio application process